5249 Moon Rd
Custom New Construction – Powder Springs Georgia GA
Project Overview
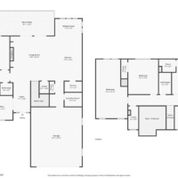
Situated in Powder Springs, Georgia, this contemporary residence at 5249 Moon Road offers luxury modern living with thoughtful layouts designed for a wide range of lifestyle needs. This stunning home features 4 bedrooms and 3.5 baths with 3,322 Sqft. of living space, showcasing an open-concept floor plan with soaring ceilings, abundant natural light, and high-end finishes throughout. Unique to this design are dual primary en-suites, making the home ideal for multi-generational living or guest accommodation. Complementing the interior is adedicated side-yard fire pit for outdoor entertaining and an integrated electric vehicle charging port, supporting modern convenience and future-forward living. With elegant contemporary architecture and a streamlined flow from room to room, this residence blends style, comfort, and functionality in a desirable Powder Springs setting.
Quick Facts
Feature | Detail |
Location | Powder Springs, GA |
Type | Single-Family Residential |
Style | Contemporary / European Modern |
Square Footage | ~3,332 Sqft. |
Bedrooms / Baths | 4 Bedrooms • 3.5 Baths |
Garage | 2-Car Garage |
Lot Size | .69 Acre (approx.) |
Year Built | 2025 |
Builder | Elitebuilder4u |
Status | Completed / Available |
Image Gallery
Exterior Highlights
- Striking contemporary architectural design featuring clean lines, bold roof geometry, and a refined modern façade
- Thoughtfully designed exterior elevations that balance visual impact with functional layout
- Expansive window placements enhance natural light while maintaining a sleek, modern exterior profile
- Durable exterior materials selected for long-term performance, low maintenance, and modern aesthetics
- Well-defined front entry creating strong curb appeal and a welcoming arrival experience
- Driveway and hardscape elements designed to complement the home’s modern exterior character
- Electric vehicle charging port integrated for modern, eco-conscious living
- Dedicated side-yard fire pit area creating an intimate outdoor gathering space for entertaining and relaxation
- Exterior lighting designed to highlight architectural features and improve nighttime presence
Interior Highlights
- Dramatic open concept with towering ceilings and seamless flow from main living to kitchen.
- Two primary bedroom en-suites — rare layout supporting multi-generational or flexible living.
- Spacious gourmet kitchen with large island (standard with high-end finishes).
- Main-floor primary suite ideal for convenience and accessibility.
- Generous secondary bedrooms with thoughtfully designed closets and bath access.
- Elegant and modern bathroom finishes with tile showers/tubs.
- Living area with feature wall/fireplace option depending on build package.
- Luxury interior lighting selections and premium materials throughout.
- Contemporary finishes/fixtures fitting the sophisticated design schemes.
Love what you see?
Contact us to discuss building a similar home – customized to your style, location, and budget
NOTICE: INFORMATION SUBJECT TO CHANGE
All drawings, designs, finishes, renderings, dimensions, and specifications shown are conceptual in nature and provided for illustrative purposes only. They are not guaranteed to represent the final construction, materials, or appearance. The architect, designer, general contractor, and developer may modify any aspect of the project at any time as required for design development, code compliance, material availability, or construction conditions. No warranties or representations are made regarding accuracy or completeness. Construction shall proceed only from the most current, approved, and issued-for-construction documents.






















































































































